売主「鎌倉市西鎌倉」店舗付き新築分譲住宅
湘南モノレール線「西鎌倉」駅より徒歩4分
周囲は、有名店が多数あり商業利用に適する
建築家が基本設計を手掛けた注文住宅を超えた建売住宅です。
■韓の台所・NTT目の前
■隣はCOOP

■物件概要
価格/7980万円(税込み)
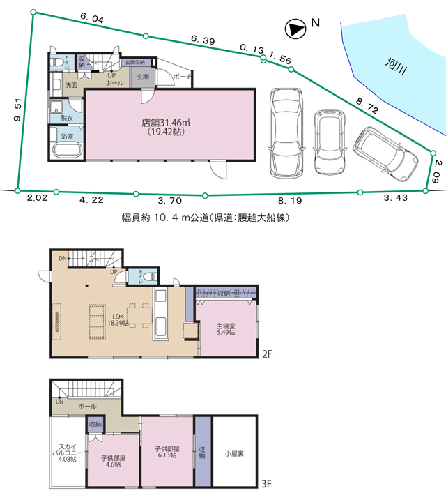
土地面積/148.93㎡(45.05坪)
建物面積/128.11㎡
地番/鎌倉市西鎌倉1-1209-3
住居表示/鎌倉市西鎌倉1-21-22
地目/宅地
都市計画/市街化区域
用途地域/第一種住居地域
建ぺい率/60%
容積率/200%
建物構造/木造ガルバリウム鋼板葺き3階建て
現況/建築中
完成日/令和8年6月初旬
引渡日/令和8年7月1日
設備/本下水・公営水道・都市ガス
公法/宅造規制・準防火地域・高度地区・景観法・風致地区
取引形態/売主
更新日/令和8年1月6日
■間取り図

●1階を店舗にして、駐車場3台可能!
●スカイバルコニー付きの3LDK!+店舗という贅沢な間取り!
●高性能な設備の数々、都市ガス衣類乾燥機「乾太くん」標準装備!
●自宅兼用店舗なので家賃不要でお店が営めます!
■地図
■周辺環境
●まんまる保育園/408m
●西鎌倉幼稚園・保育園/539m
●きみのまま保育園/927m
●たんぽぽ共同保育園/968m
●西鎌倉小学校/317m
●手広中学校/490m
●モンタナ幼稚/1265m
●西鎌倉こどもの家/346m
●腰越図書館/1003m
●西鎌倉郵便局/445m
●こどもクリニック/178m
●ファミリークリニック/163m
●湘南記念病院/1670m
●レ・シュー /148m
●ユーコープ/21m
●スズキヤ/234m
●ラポール/392m
●クリエイトSD/695m
●業務用スーパー/859m
●ローソン/262m
●スーパーたまや/1562m


